Kerttervezés
A kert megtervezése egy többlépcsős folyamat, amely során folyamatos konzultációkon keresztül jutunk el a nagyvonalú, vázlatos elképzelésektől a részletek kidolgozásáig.
A kert terv maga több részfolyamatból áll:
Ingyenes helyszíni felmérés
A szemle során felmérjük a kerttel kapcsolatos igényeket, pontosan felmérjük a területet, minden tereptárgyat, a meglévő növényzetet, burkolatokat. Mindezt egy digitális file-ban rögzítjük.

Vázlattervek
A kert berendezéséről szükség szerint egy vagy két fő vázlatterv készül, illetve ezek kisebb módozatai, amennyiben szükséges (ha az első megbeszélés során vázolt elképzelések sokrétűek, szerteágazóak, az ötletek képlékenyek).
A vázlatterv tartalmazza:
- a megbeszéltek alapján a funkciókat (burkolatok, utak, főbb növénycsoportok, oldalsó takarás, építmények (pihenő, csobogó, kerti tó, pergola, támfalak), azok főbb méretét, egymáshoz viszonyított elhelyezkedését
- ajánlások a főbb növényekre, anyagokra
A vázlatterv(ek) elkészülte utáni megbeszélést követően „egybegyúrjuk” az ekkorra megszülető, és esetleg újonnan keletkező ötleteket, átbeszéljük a megoldandó feladatokra adható válaszlehetőségeket. Ezek folyományaként készül el a részleteibe menő terv.

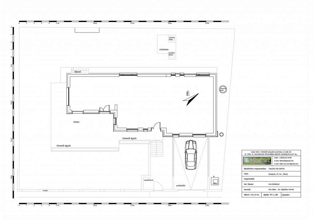
Kertépítészeti terv
Tartalmazza:
- a pontos térszerkezetet, a funkciók pontos helyét és méretét
- a növények elhelyezését, a növényfoltok méretét, fák helyeit. A növények jelentős részére (leginkább a fás szárú növényekre) itt már javaslatot teszünk, de ezt a fázist még követi a részletes növénykiültetési terv.

Növénykiültetési terv
Növénylista számozott növénykiültetési tervvel, amiben szerepel a növények latin-magyar neve, beszerzési mérete, darabszáma, ára. A növényekről egyenként egy oldalas bemutatóanyagot(növénytabló) adunk, amin látható az adott növény jellemző habitusa (megjelenési formája, tavaszi-őszi), s a legfontosabb tulajdonságai: méret, növekedési ütem, virágszín, virágzási idő, termés, felhasználhatóság, főbb igények.
Részlettervek
Szükség szerint a terven szereplő elemekről részlettervet készítünk, mint pl.: pergola, támfal, lépcső stb.
Árazatlan költségvetés
A kert terv maga több részfolyamatból áll:
Ingyenes helyszíni felmérés
A szemle során felmérjük a kerttel kapcsolatos igényeket, pontosan felmérjük a területet, minden tereptárgyat, a meglévő növényzetet, burkolatokat. Mindezt egy digitális file-ban rögzítjük.

Vázlattervek
A kert berendezéséről szükség szerint egy vagy két fő vázlatterv készül, illetve ezek kisebb módozatai, amennyiben szükséges (ha az első megbeszélés során vázolt elképzelések sokrétűek, szerteágazóak, az ötletek képlékenyek).
A vázlatterv tartalmazza:
- a megbeszéltek alapján a funkciókat (burkolatok, utak, főbb növénycsoportok, oldalsó takarás, építmények (pihenő, csobogó, kerti tó, pergola, támfalak), azok főbb méretét, egymáshoz viszonyított elhelyezkedését
- ajánlások a főbb növényekre, anyagokra
A vázlatterv(ek) elkészülte utáni megbeszélést követően „egybegyúrjuk” az ekkorra megszülető, és esetleg újonnan keletkező ötleteket, átbeszéljük a megoldandó feladatokra adható válaszlehetőségeket. Ezek folyományaként készül el a részleteibe menő terv.

Kertépítészeti terv
Tartalmazza:
- a pontos térszerkezetet, a funkciók pontos helyét és méretét
- a növények elhelyezését, a növényfoltok méretét, fák helyeit. A növények jelentős részére (leginkább a fás szárú növényekre) itt már javaslatot teszünk, de ezt a fázist még követi a részletes növénykiültetési terv.

Növénykiültetési terv
Növénylista számozott növénykiültetési tervvel, amiben szerepel a növények latin-magyar neve, beszerzési mérete, darabszáma, ára. A növényekről egyenként egy oldalas bemutatóanyagot(növénytabló) adunk, amin látható az adott növény jellemző habitusa (megjelenési formája, tavaszi-őszi), s a legfontosabb tulajdonságai: méret, növekedési ütem, virágszín, virágzási idő, termés, felhasználhatóság, főbb igények.
Részlettervek
Szükség szerint a terven szereplő elemekről részlettervet készítünk, mint pl.: pergola, támfal, lépcső stb.
Árazatlan költségvetés
